Каталог
Описание
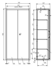
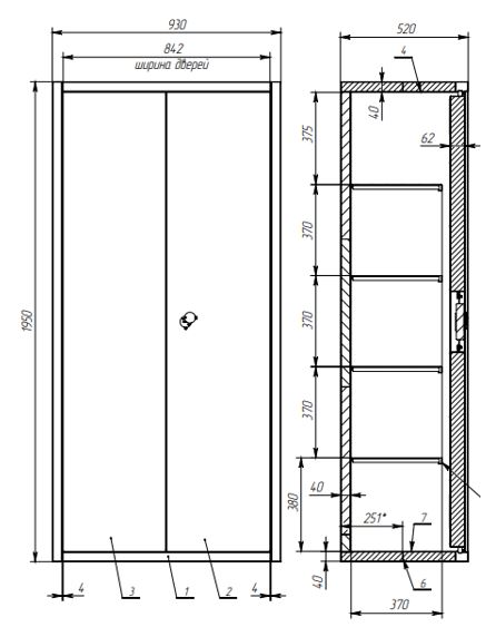
Предназначен для хранения и защиты от пожара архивных документов. Изготавливается из листовой стали. Двустенная конструкция, пространство между внешним и внутренним корпусами заполнено теплоизоляционным наполнителем. Двухдверный шкаф, толщина дверей - 60 мм. Общее количество полок - 4. Комплектуется механическим замком с двумя ключами и приспособлением для опечатывания. Запирание дверей производится трехсторонней ригельной системой запирания с 5 ригелями. Лицевые и внутренние поверхности шкафа покрываются порошковой краской серого цвета. Огнестойкость - класс 30 Б.
Отзывы
Передняя панель для стола 5004( Категория: Комфорт);
Недавно просмотренные товары
Новости статьи
Описание типовой мебели по 120 приказу
Вешалка настенная на 5 крючков Вешалка изготавливается из мебельных щитов, древесно-стружечных плит толщиной 16 мм, облицованных шпоном твердолиственных пород или синтетическими...
НА ЧТО СЛЕДУЕТ ОБРАЩАТЬ ВНИМАНИЕ ПРИ ВЫБОРЕ ШКОЛЬНОЙ МЕБЕЛИ
Как подобрать моему ребенку школьную парту или школьный стул – этот вопрос каждый год задают многие родители, когда они отправляют...
ВЫДЕРЖКИ ИЗ ПРИКАЗА МИНИСТРА ОБОРОНЫ №120
О ПОРЯДКЕ ОБЕСПЕЧЕНИЯ МЕБЕЛЬЮ И ИНВЕНТАРЕМ СОЕДИНЕНИЙ, ВОИНСКИХ ЧАСТЕЙ И ОРГАНИЗАЦИЙ ВООРУЖЕННЫХ СИЛ РОССИЙСКОЙ ФЕДЕРАЦИИ (в ред. Приказа Министра обороны РФ от 20.09.2007...
МИНИМАЛЬНЫЕ ТРЕБОВАНИЯ К ОФИСНОЙ МЕБЕЛИ
Офисная мебель экономичного класса изготавливается целиком из ламинированной ДСП толщиной 18 мм (белорусский стандарт) или 16 мм (российский стандарт). В...




